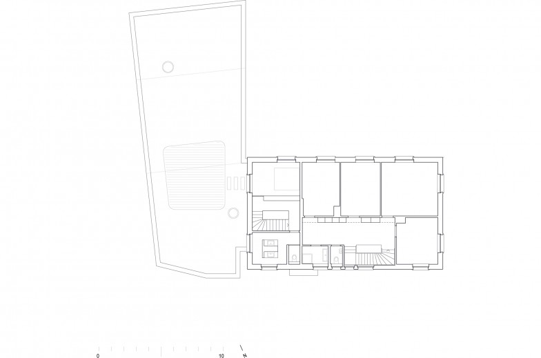
Haus L Winterthur
Im Umbau des bestehenden Wohnhauses mit Arztpraxis zu einem Zweifamilienhaus fügen sich Materialien und Details eines traditionellen Villenausbaues in die reduzierte Formensprache eines modernen Ausbaus. Die reichhaltigen Stilelemente einer traditionellen Baukunst werden so im Zusammenspiel mit zurückhaltenden homogenen Oberflächen in ihrer Wirkung verstärkt und freigespielt.
Die historisierende Wirkung von Nussbaum-Holzwerk, handgefertigten
Zementstein-Fliesen und strukturierten Tapeten wird abstrahiert und damit zum ornamentalen Verweis auf die Baugeschichte.
Durch einen zusätzlichen Anbau ans bestehende Wohnhaus folgt auch die äussere Erscheinung dem gewählten Konzept und formt ein spannendes Nebeneinander von Material- und Formensprachen unterschiedlicher Zeitepochen.











