Mexiko Boquilla
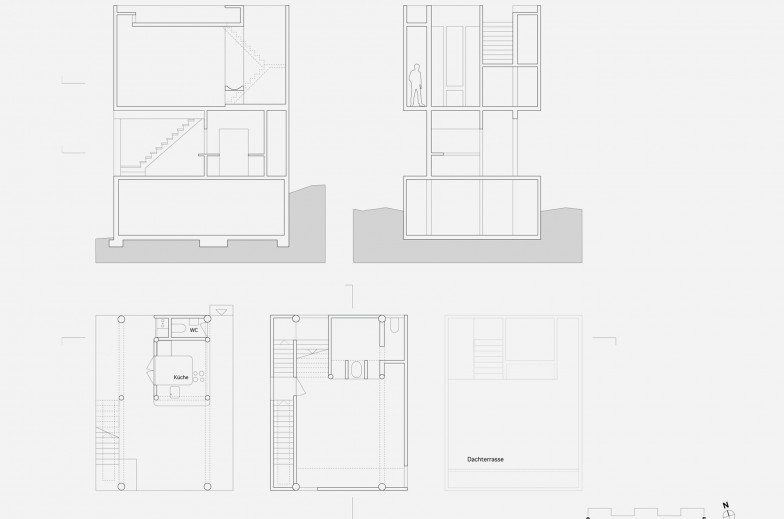
Das Haus liegt an der mexikanischen Pazifikküste im Bundesstaat Oaxaca auf einem Geländevorsprung im Wald ca. 70m über dem Meeresspiegel. Über einen schmalen Gratweg wird das dreigeschossige Haus von der Hangseite her erreicht.
Auf dem Sockelgeschoss bauen sich Wohngeschoss, Schlafraum und die Dachterrasse mit einem berauschenden Rundblick über den Baumkronen auf.
Über dem nach aussen vollständig offenen Wohnraum mit geschlossenem Küchenkern liegt der allseitig geschlossene und nur über die perforierten Aussenwände belichtete und belüftete Schlafraum mit der Nasszelle in einem zum Himmel offenen Innenhof. Das Raumschema des Obergeschosses wird so zur Umkehrung desjenigen des Erdgeschosses.











