Mehrfamilienhaus Wiesenstrasse
Parallelen prägen das Bebauungsmuster im nordwestlichen Siedlungsgebiet von Winterthur. Das Volumen dreht sich subtil aus der vorherrschenden Orthogonalität aus und akzentuiert damit sowohl seine Grundrissform als auch seine Position zwischen den Wohnbauten und dem benachbarten Schulhaus.
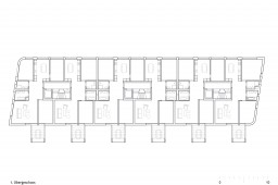
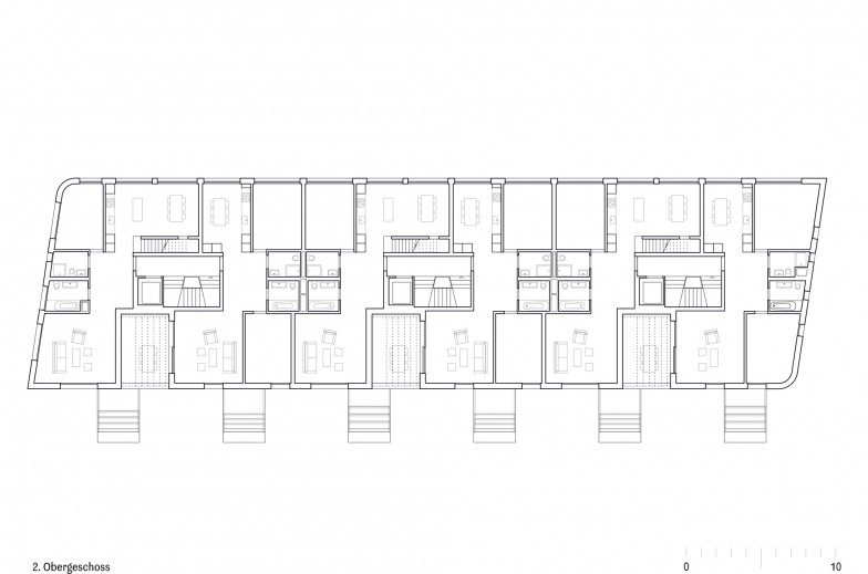
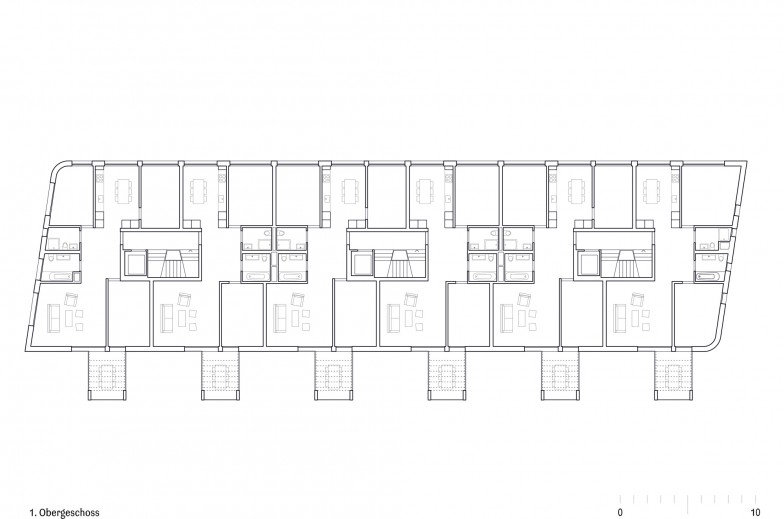
Der Neubau im Quartier Veltheim fasst zwei Wohnbau-Typologien der Umgebung in einem Baukörper zusammen. An der Nahtstelle zwischen Reihenhaussiedlungen aus den 20er- und Genossenschafts-wohnblöcken aus den 50-er Jahren, verbindet das Mehrfamilienhaus deren volumetrische und strukturelle Charaktere zu einer neuen Ausdrucksform. Es verknüpft typische Reihenhausqualitäten mit der Logik effizienter Geschosswohnungen und reagiert dabei sowohl im Schnitt als auch im Grundriss auf Kontext und Orientierung.
Die kubische Grundform wird durch Erhöhungen, Einschnitte und Auskragungen modelliert und erhält damit auf vier Ebenen grosszügige private Aussenräume. Zwei abgerundete Gebäudeecken fassen die spezifisch ausformulierten Strassen- und Hoffassaden zu „Halbschalen“ zusammen, welche sich zu einer neuen, dipolaren Einheit fügen.


















